Apartment for sale in Jadinah - New Heliopolis

, 4 views Apr 28, 2026

EGP6,5million Selling

Overview
Category Apartment
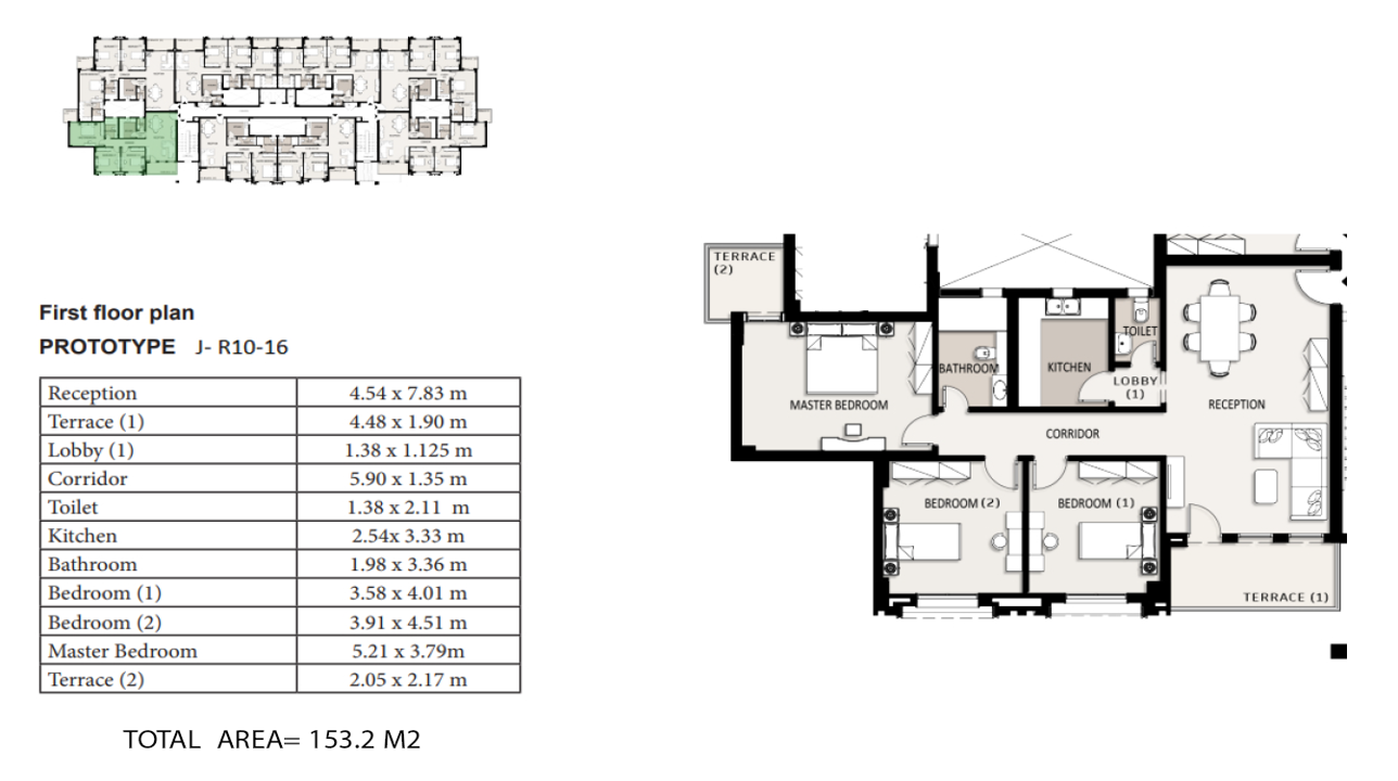
Square 153 m²
Number of bedrooms 3
Number of bathrooms 2
Number of floors 1
Price EGP6,5million
Description

 امتلك وحدتك بمشروع Jadinah  في مدينة هليوبوليس 

المشروع ملك لشركة مصر الجديدة 

موقع مميز في قلب نيو هليوبوليس ،إطلالات مباشرة على الشارع الرئيسي والقصبة الخضراء 

مساحة الوحدة 153 متر - دور أول

مكونة من 2 غرفة نوم + غرفة ماستر- حمام - مطبخ - 3 تراس- 

مشروع متكامل (سكني + تجاري + إداري) 

مشروع متكامل (سكني + تجاري + إداري) 




Share this property:
Contact agency

Contact


Related properties